咨询效劳热线
139-5323-0081
400-633-6066
+86-532-89787008
联系方法
产品概述:
基于电磁感应原理。当高压电能通过高压线圈流过时,爆发的磁场会在铁芯中爆发磁通量。这个磁通量会进一步感应出低压线圈中的电动势,从而将高压电能转换为低压电能。具体来说,当柱上式变压器连接到电源后,由于电流的通入,在线圈中会爆发磁通,这个磁通会穿过线圈内部和外部的磁路,最终形成磁链。由于线圈内部的磁链是由电流爆发的,因此称之为自感磁链或电感磁链。当变压器中两个线圈的匝数差别时,变压器中的电压就会爆发变革,这是由于磁通在通过差别匝数的线圈时,在线圈的内部和外部会爆发差别的电压。
产品特点:
单相柱上变压器的结构主要包括高压线圈、低压线圈、铁芯和油箱等部分。铁芯有圆柱形和矩形两种,其中圆柱形铁芯结构较为简单。变压器整体装置在电力线路的柱子上,便于维护和操作。
型号寄义:

执行标准:
GB 1094.1-1996《电力变压器 第1部分 总则》
GB1094.2-1996《电力变压器 第2部分 温升》
GB1094.3-2003《电力变压器 第3部分 绝缘水平、绝缘试验和绝缘空气间隙》
GB1094.5-2003《电力变压器 第5部分 蒙受短路的能力》
JB/T10317-2002《单相油浸式电力变压器技术参数和要求》
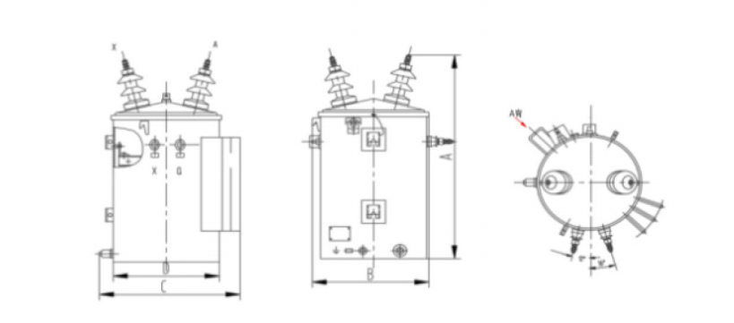
产品结构:



竭诚为您提供优质的产品和专业的效劳,请您坚持电话流通,我们将尽快与您联系,谢谢您的支持!